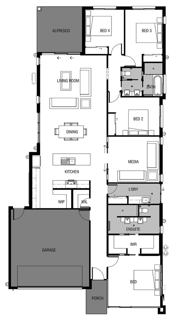
Home Specifications
| Bedrooms (mm) | |
| Master Bedroom | 4050x4000 |
| Bed 2 | 3390x3000 |
| Bed 3 | 2900x3500 |
| Bed 4 | 3020x2900 |
| Living Areas (mm) | |
| Living | 5180x4200 |
| Dining | 5180x3500 |
| Media | 3990x3600 |
| Outdoor (mm) | |
| Outdoor Living | 3570x3500 |
| Total Areas (m²) | |
| Living Area | 186.88 |
| Garage | 39.32 |
| Alfresco | 12.50 |
| Porch | 3.95 |
| Total 242.64 |
| Width (m) | 12.140 |
| Length (m) | 24.020 |
Back to search results

